Einfamilienhaus mit Werkstatt u. Garage
Aying
Das kleine längliche Grundstück grenzt mit einer Schmalseite an eine dicht befahrene Bundesstraße. Der Entwurf beinhaltet ein nach Süden orientiertes, lang gestrecktes Wohnhaus und eine quer dazu liegende Werkstatt im Osten, die den Lärm der Straße vom Wohnbereich abschirmt. Die architektonische Haltung nimmt Bezug auf die umliegende dörfliche Struktur (Wohnbau mit angebautem Wirtschaftsteil).

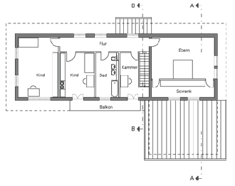
Obergeschoss

< - >