| Neubau eines Außenklimastalls für Milchviehhaltung, Aßling |
|
 |
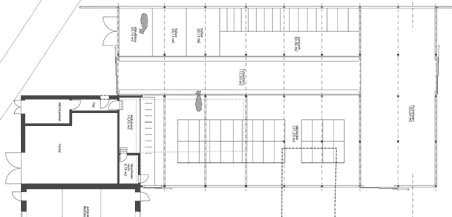
| Der Bauherr bewirtschaftet im Nebenerwerb ein landwirtschaftliches Anwesen.
Um den heutigen Anforderungen an Wirtschaftlichkeit gerecht zu werden und den aktuellen Vorschriften für Tierhaltung zu
entsprechen, wurden die vorhandenen Stallgebäude umgebaut und um einen Außenklimastall erweitert. Der neue
Liegeboxenlaufstall wurde für 28 Milchkühe und ca. 32 Jungtiere und Kälber geplant. |
|
|
|
Grundriss |
<
- > |
|